

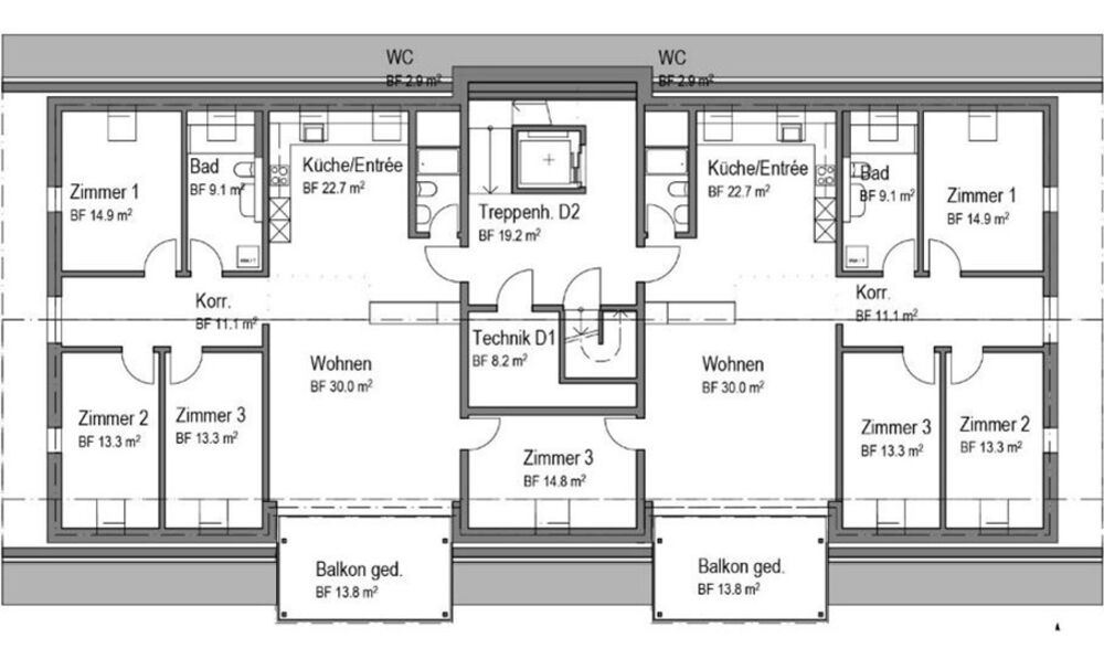
Wärmespeicher 111 m3 wird ins Zentrum des MFH-Baus eingebracht.
Jenni Energietechnik AG / PW
Weiteres 100% solarbeheiztes MFH
Am 5. März 2025 wurde ein weiterer 8-MWh-Wärmespeicher für das dritte Mehrfamilienhaus der Solarüberbauung Allmend in Huttwil geliefert. Dieses zukunftsweisende Bauprojekt von Jenni Energietechnik AG beweist, dass zu 100 % solarbeheizte Wohnhäuser wirtschaftlich und alltagstauglich sind. Der 111 m3 grosse Energiespeicher Swiss Solartank bildet das Herzstück des nachhaltigen Heizsystems, das mit thermischen Kollektoren arbeitet.
Die Jenni Energietechnik AG beweist seit Jahren, dass vollständig mit Solarwärme versorgte Wohnhäuser (Heizung und Warmwasser) problemlos erstellt werden können. Ihre Sonnenhäuser sind längst massentauglich und auch bezahlbar.
Die Bewohner des Sonnenhauses müssen sich keine Sorgen machen um steigende Heiz- und Warmwasserkosten, oder auch grundsätzlich, dass sie frieren müssen. Was bis heute fehlt, ist die breite Umsetzung des bewährten und zukunftsweisenden Konzepts.
2 Kurz-Videos zeigen Absenk-Geschwindigkeit beim Einbringen des Speichers.
Ein 12-Tonnen-Herzstück für nachhaltige Wohnzukunft
Es war ein besonderer Tag für Huttwil: Am Mittwoch-Morgen 5. März 2025 erreichte ein aussergewöhnlicher Transport das Emmentaler Städtchen. Angeführt von einem Begleitfahrzeug schlängelte sich ein Transport von Oberburg Richtung Bauplatz. Die Fracht? Ein 12 Tonnen schwerer Wasserspeicher, der als Herzstück der neuen Solaranlage für ein Achtfamilienhaus dient.
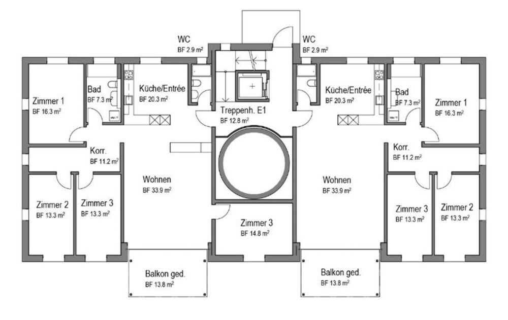
Der von der Jenni Energietechnik AG produzierte Wärmespeicher (Gewicht 12 t, Höhe 10.5 m) kann bis zu 8 MWh (110 m3 Wasser, ΔT bis 60K) Energie speichern und deckt den gesamten Wärmebedarf des Hauses mit erneuerbaren Ressourcen ab. Im Zentrum des Gebäudes platziert, wird das Haus quasi um den Speicher herum gebaut. Auf der Südseite befinden sich 160 m2 moderne Sonnenkollektoren, die Wärme für Heizung und Warmwasser gewinnen. Es ist bereits das dritte Haus in Huttwil, welches so geheizt wird.
"Unsere Wohnungen heben sich von anderen Überbauungen ab", betont die Jenni Liegenschaften AG. "Wir setzen auf Nachhaltigkeit, tiefe Betriebskosten und Versorgungssicherheit. Mit diesen Häusern wollen wir zeigen, wie mit innovativer Technologie klimafreundliches Wohnen schon heute möglich ist.»
Saisonale Speicherung mit thermischer Energie: Effizient und nachhaltig
Die saisonale Speicherung mit thermischer Energie gewinnt zunehmend an Bedeutung, wenn es darum geht, erneuerbare Energien effizient zu nutzen. Diese Technik ermöglicht es, im Sommer produzierte Wärme zu speichern und im Winter bedarfsgerecht abzurufen. Im Vergleich zu anderen Speichertechnologien bietet sie zahlreiche Vorteile.
1. Hoher Wirkungsgrad und geringe Verluste
Thermische Energiespeicher, insbesondere Wasserspeicher, zeichnen sich durch hohe Effizienz aus. Die Wärmeverluste sind bei guter Isolierung gering und können genutzt werden, sodass die gespeicherte Energie auch nach mehreren Monaten noch nutzbar bleibt.
2. Umweltfreundliche und bewährte Technologie
Im Gegensatz zu elektrochemischen Speichern wie Batterien werden bei thermischen Speichern viel weniger umwelt- schädliche Materialien benötigt. Wasser ist als Speichermedium weit verbreitet, sicher und unbedenklich. Zudem sind thermische Speicher seit Jahrzehnten erprobt und technisch ausgereift.
3. Geringe Kosten und lange Lebensdauer
Thermische Speicher sind im Vergleich zu Batterien oder anderen Speichermedien kostengünstiger in der Anschaffung und im Betrieb. Ihre Lebenserwartung liegt oft bei vielen Jahrzehnten, was sie zu einer wirtschaftlich attraktiven Lösung macht.
4. Integration in nachhaltige Energiekonzepte
Saisonale Wärmespeicher lassen sich optimal mit nahezu allen bestehenden Heizsystemen kombinieren. So kann auch überschüssiger Photovoltaik-Strom effizient genutzt werden. Wenn an sonnigen Tagen mehr Strom erzeugt wird, als im Haushalt benötigt wird, kann dieser mit Hilfe von Heizstäben in Wärme umgewandelt werden. Die elektrische Energie wird dabei in Form von Wärme im Wasserspeicher gespeichert und steht für Heizung und Warmwasser während der kalten Jahreszeit zur Verfügung.
Fazit: Die saisonale Speicherung mit thermischer Energie ist eine effiziente, umwelt- freundliche und wirtschaftlich attraktive Lösung zur Nutzung von Sonnenenergie. Sie trägt massgeblich zur Dekarbonisierung der Wärmeversorgung bei und leistet damit einen wichtigen Beitrag zum Klimaschutz und der Energiewende.
Weshalb sollen auch andere Investoren die Jenni-Idee kopieren?
Jenni Energietechnik AG möchte mit ihrem neuen Projekt darauf aufmerksam machen, dass neu gebaute Häuser mit geringem Aufwand ganzjährig solarbeheizt werden können. Solche Gebäude bieten wirtschaftliche Vorteile, da sie auch in Zeiten von Energiemangel attraktiv bleiben.
Das Unternehmen sieht solarbeheizte Häuser als zukunftsfähige Investition und möchte andere Bauherren ermutigen, diesem Beispiel zu folgen.
Heizungskonzept: Tabelle siehe letztes Bild.




